Functions at 4 Pines Coolangatta

28/72 Marine Parade, Coolangatta, 4225, QLD

4 Pines was born over a decade ago from a casual conversation between Father & Son, post surf, who simply wanted an exceptional beer. But we’re not just about making beer for people to enjoy - we're here to be your home away from home.

Located just metres from the iconic beach on Marine Parade, our brewery & bar brings laid-back Gold Coast vibes, fresh house-crafted beer and flexible event spaces tailor-made for birthdays, parties, work functions and whatever you’re celebrating. Welcome to our home, 4 Pines x Boardriders Coolangatta.

AVAILABLE AREAS

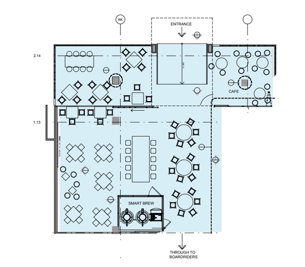
4 Pines x Boardriders Coolangatta - Full Venue Hire

Full Venue Hire

110 - 135 PAX

Take over our entire beachfront brewery for the day or night! Work with our team to build out your dream event - curate your menu, let the drinks packages flow & best of all - it's all yours.
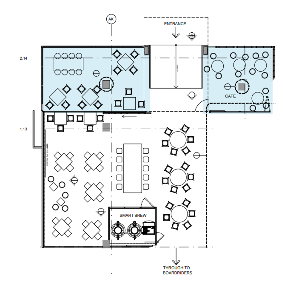
4 Pines x Boardriders Coolangatta - Outside

Outside

28 - 45 PAX

Feel the ocean breeze just steps from the water as you host your guests in the Gold Coast sunshine on our patio. Private just for your function!
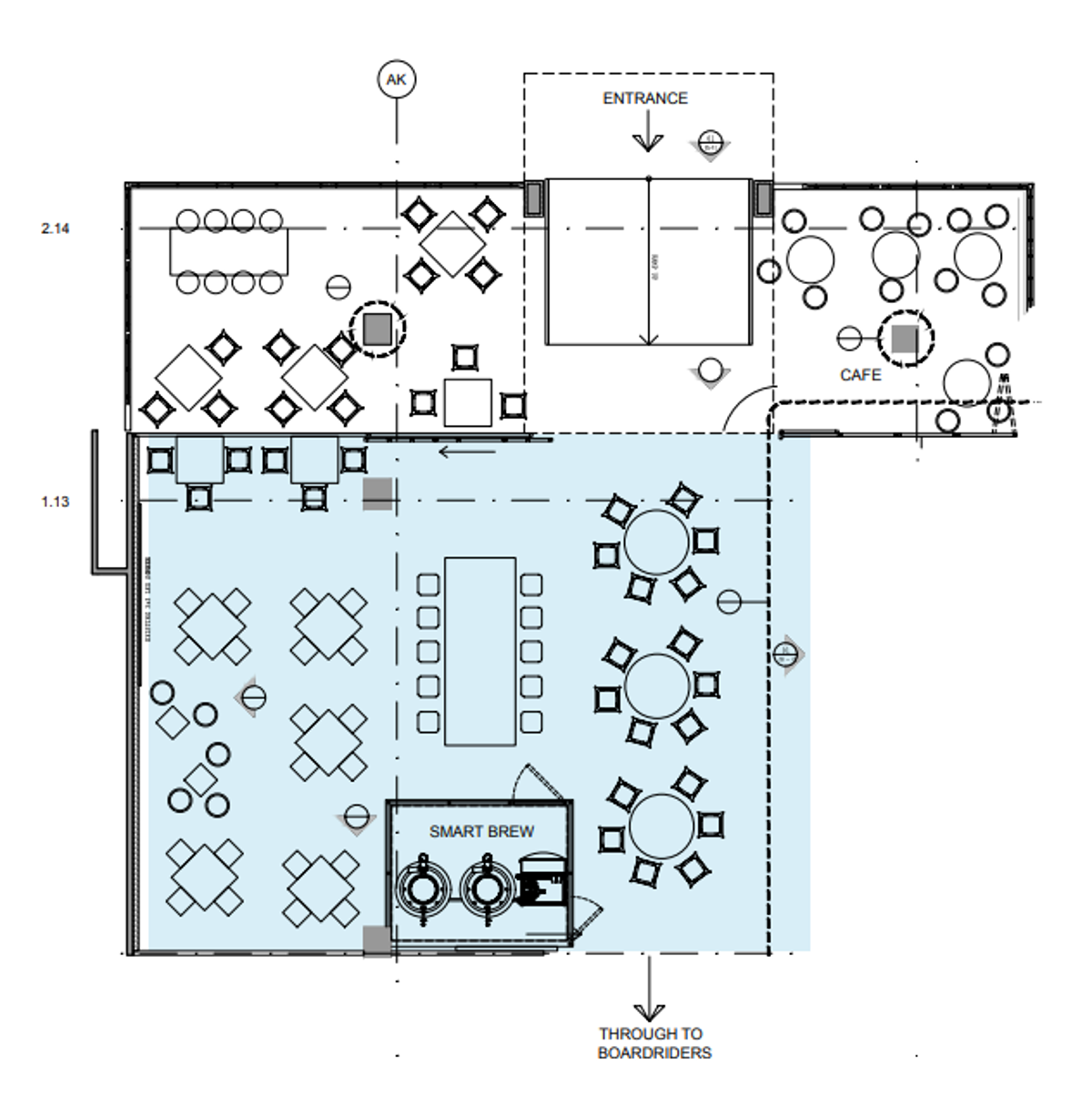
4 Pines x Boardriders - Inside

Inside

30 - 80 PAX

Bring your crew together inside 4 Pines x Boardriders Coolangatta — a warm, timber-lined space with coastal charm, buzzing taps and surf-inspired style. Perfect for laid-back celebrations or private parties with a fresh beer in hand and the beach just steps away.

"What a cracking little venue. Japanese Lager is the ultimate thirst quencher. Nice menu and great friendly customer service. Can always count on 4 Pines"